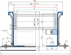
For support of the lower run - support tray modular kit simple, one-piece support trays for the e-chain® lower run. Your width, height and colour - we supply the fitting e-chain®, together with the support tray system, ready to install onto your machine or application. Save time on procurement and design.
- Complete system, ready to install
- Avoids costly custom designs
- Compatible with many e-chain® widths
- Easy installation onto your machine, on profiles or wall brackets
- Available in 2 types and 4 designs
A laying trough is not available for the selected chain.