From 15 m to max. 450 m
Chain length = S/2+K2
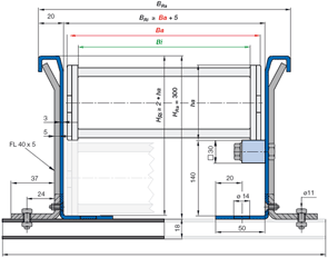
Long travel - gliding (up to max. 450 m)
Here the e-chain® is used with the upper run gliding on the lower run. We recommend letting our engineers support you when planning this type of system. In case of travel lengths between 10m and 15m, we recommend a larger unsupported e-chain®.
A1 = moving end
A2 = fixed end
A3 = Guide trough with glide bar
A4 = Guide trough without glide bar
A5 = Total length of the guide trough